Feefo logo
View the virtual tour
  • 1 Bedroom
  • 1 Bathroom
  • 1 Reception

54, Amethyst Drive, Sittingbourne, Kent, ME10 5JR

Let Agreed

£900 Per Calendar Month

Summary

A very well maintained and presented first floor one bedroom apartment located on a popular development in Sittingbourne. Excellent access to A249 and motorway network beyond with a range of local shops, pub/restaurant and doctors surgery close by. The property benefits from electric heating, double glazing, off street parking for one car (no commercial vehicles permitted), light kitchen and spacious bathroom. Available October, we regret that children & smokers are not permitted, one small family pet considered. Minimum household income of £27,000 required.

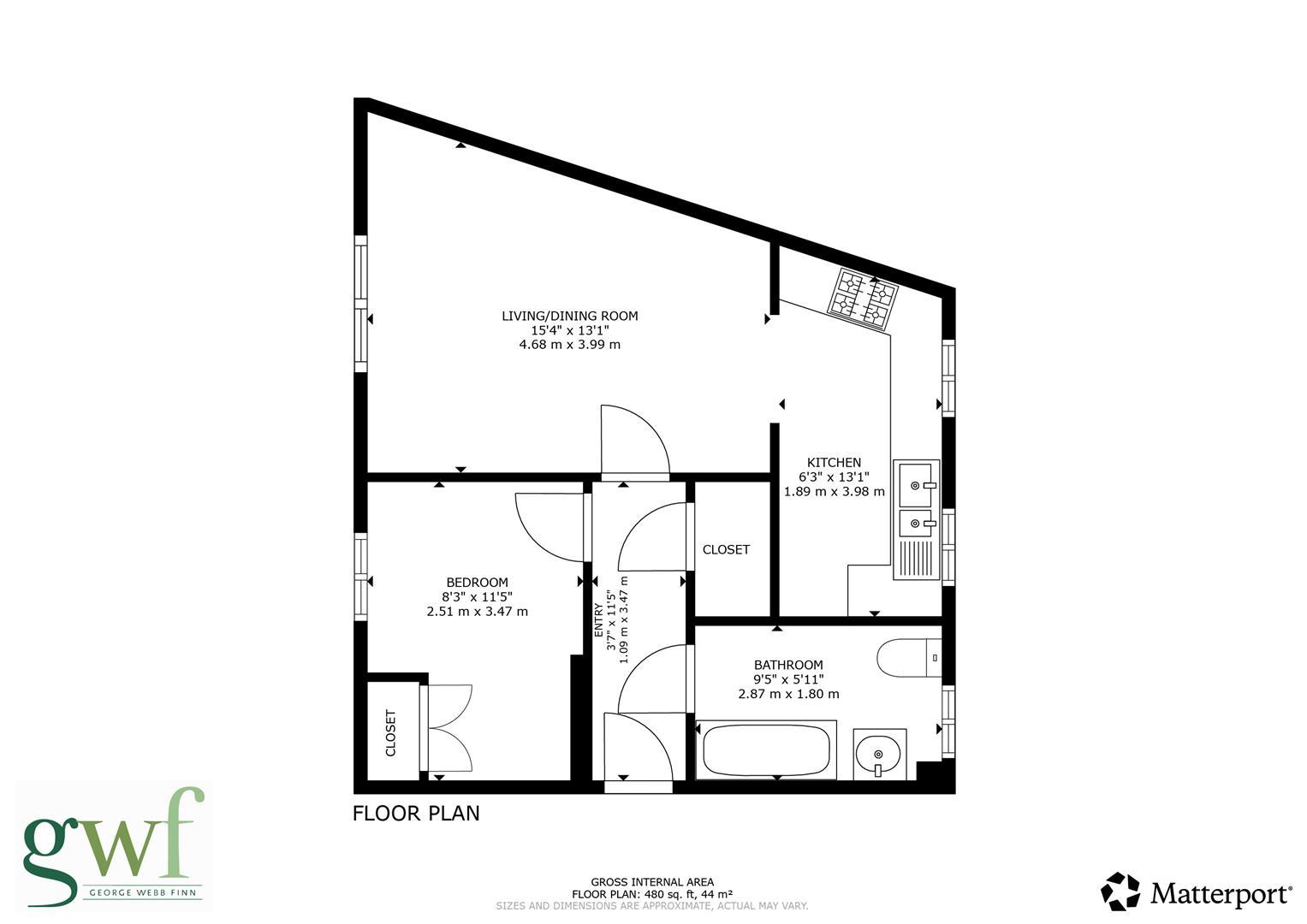
ACCOMMODATION

From communal entrance up stairs to first floor into:

Entrance Hallway

Fitted carpet, electric storage heater, airing cupboard with hot water cylinder and shelving, fuse board, door entry phone.

Living Room

4.90m x 4.09m / 16'1 x 13'5
Fitted carpet, electric storage heater, TV aerial point, phone point, opens into:

Kitchen

4.04m x 1.78m / 13'3 x 5'10
Tiled flooring, range of matching white wall and base units with granite effect work surfaces, stainless steel sink and drainer, stainless steel oven with electric hob and stainless steel extractor hood above, recess for washing machine, space for fridge freezer. Double glazed windows, electric convector heater.

Bedroom

3.51m x 2.51m / 11'6 x 8'3
Fitted carpet, electric storage heater, fitted wardrobe, double glazed window.

Bathroom

Tile effect vinyl flooring, fitted white bathroom suite comprising of pedestal wash hand basin, low level w.c. and bath with electric shower above, all with localised tiling surround. Extractor fan, shaving socket, fan heater.

OUTSIDE

Allocated parking space for one car (no commercial vehicles permitted).

GENERAL INFORMATION

Rent £900.00 per calendar month

Deposit £1038.46

Holding Deposit £207.69

Tenancy An Assured Shorthold Tenancy of twelve months duration

Viewings Strictly by prior appointment with the agent

Authority Swale Borough Council – Band B

EPC Rating C - 79

Conditions Regret no smokers or children permitted. One small family pet considered.

Minimum Household Income Required £27,000.00

Photos - photographs were taken in 2008

Floor Plan


Virtual Tour


Location


Schools

List of nearest schools to this property.

* Distances are straight line measurements.

  • Key Stage 2

    Regis Manor Primary School - 0.47 miles

  • Key Stage 4

    Westlands School - 0.66 miles

  • Key Stage 5

    Westlands School - 0.66 miles


Transport

List of nearest public transport to this property.

* Distances are straight line measurements.

  • Train Station

    Sittingbourne Rail Station - 0.76 miles

  • Airport

    London Southend Airport - 15.11 miles

  • Coach Station

    Gillingham (Medway): Hempstead Valley Coach Stop - 6.41 miles

  • Ferry Port

    Gravesend Pier - 16.61 miles


George Web Finn - News

Contact us about this property

43, Park Road, Sittingbourne, Kent, ME10 1DY

01795 470556 info@georgewebbfinn.com

Virtual Tour

George Webb Finn

EPC

BOOK A VALUATION